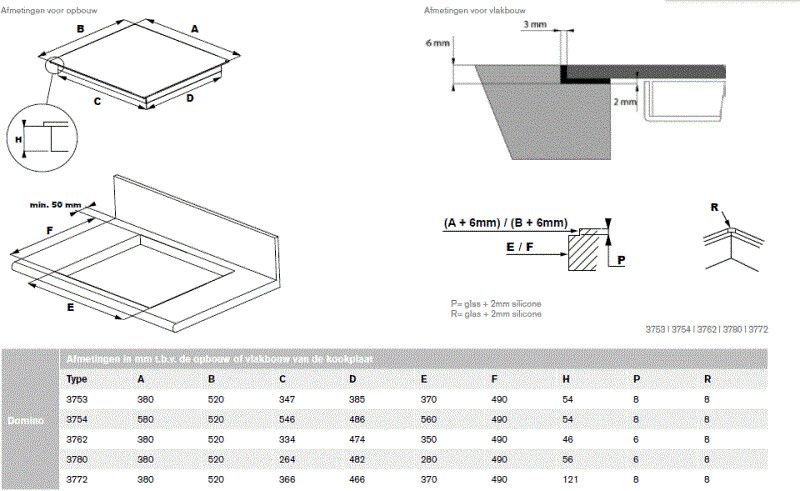
Novy 3753


Koken op een inductiekookplaat brengt veel voordelen met zich mee ten opzichte van koken op gas of een keramische kookplaat. Je pan is namelijk zeer snel warm, maar koelt ook zeer snel weer af. Er ontstaat namelijk alleen warmte op de bodem van de pan.
Ook is een inductieplaat erg veilig. Als je de pan van de 3753 afhaalt dan schakelt de zone automatisch uit. De plaat koelt snel af waardoor je jezelf niet snel verbrandt. De kookplaat schakelt automatisch uit nadat er voor bepaalde tijd niet op gekookt wordt.
Daarnaast hebben sommige inductie kookplaten ook kookzones die flexibel gebruikt kunnen worden. Deze zones kan je gebruiken als 2 losse zones, maar ook als 1 grote kookzone. Zo kun je ook langwerpige grillplaten gebruiken. Kijk naar de specificaties van de kookplaat of deze een flexibele zone heeft.

Wanneer je kiest voor een inbouw kookplaat is het belangrijk om goed naar de aansluitwaarde te kijken. Weet je de aansluitwaarde? Dan weet je op hoeveel fasen de 3753 moet worden aangesloten. Er zijn ook kookplaten met powermanagement, deze kunnen op verschillende fasen aangesloten worden. Hou er rekening mee dat de kookplaat altijd het beste werkt wanneer je kiest voor de hoogste aansluitwaarde.
Deze kookplaat is geschikt om aan te sluiten op de volgende aansluitwaarden:

Bepaal zelf wanneer je je nieuwe Novy 3753 kookplaat bezorgd wilt hebben. Selecteer eenvoudig de datum die je het beste uitkomt. Na je bestelling ontvang je direct een bevestigingsmail. Gekozen voor onze standaard bezorging? Dan bieden we je op de bezorgdag de volgende service:
Koop je bij ons een of meer inbouwapparaten? Dan kun je deze vakkundig laten inbouwen door gecertificeerde monteurs van montagebedrijf AJ Tec. Deze inbouwservice vink je aan als extra optie op de productpagina of in het winkelmandje. Dit kun je verwachten:
Wanneer we je Novy kookplaat komen bezorgen, nemen we op verzoek direct je oude apparaat mee. Deze service is volledig gratis. We zorgen voor een milieuvriendelijke afhandeling van je oude kookplaat. Wil je je oude apparaat laten afvoeren en recyclen, en heb je niet gekozen voor onze inbouwservice?
Zorg er dan voor dat het apparaat bij de eerste afsluitbare deur staat.
De kookplaten die we leveren hebben een garantieperiode van 2 jaar na aankoop. Ondanks dat de Novy 3753 voldoet aan de hoogste kwaliteitseisen, zijn reparaties na deze periode niet altijd te voorkomen.
Daarom kun je de garantie verlengen van 2 naar 5 jaar. Deze extra zekerheid selecteer je voor een klein bedrag bovenaan deze pagina.